Чтобы запросить цену ниже, укажите номер телефона и e-mail.
Все остальные данные Вы сможете сообщить менеджеру.
Код производителя
Материал
Количество считывателей
Количество зон прохода
Место установки
Встроенный картоприемник
Стандарт интерфейса связи
Автоматические планки
Встроенный контроллер

Ростов-Дон Т83М1 турникет-трипод напольный. Нормально-открытый, без подачи электропитания - разблокирован. Стойка со съемной лицевой панелью, за которой возможно размещение дополнительного оборудования. Кожух и основание овальной формы.
Надежность, функциональность, классический элегантный дизайн турникетов-триподов «Ростов-Дон» делают их универсальным решением для проходных офисных и административных зданий, банков, учебных заведений, заводов и др. объектов.
Турникет «Ростов-Дон Т83М1» предназначен для эксплуатации внутри помещений. В него установлена новая электроника, которая обеспечивает стыковку с любой системой контроля и управления доступом (СКУД) без дополнительного адаптера (турникет выдает в СКУД релейные сигналы факта прохода «на вход» и «на выход» типа «разомкнутый сухой контакт» и «замкнутый сухой контакт»), а также обеспечивает режим работы «Запрет возврата после прохода наполовину (antipassback)» как при работе от СКУД, так и при работе от пульта охранника. В турникетах этой модификации используется цифровой магнитный датчик углового положения механизма и штанг турникета. Турникет управляется с пульта дистанционного управления (ПДУ) и обеспечивает пропуск в любом из двух направлений как по одному человеку, так и группы людей.
- высокая пропускная способность (до 40 чел./мин.);
- проход как по одному человеку, так и свободный проход группы людей;
- управление от системы контроля доступа, пульта дистанционного управления или системы радиоуправления;
- совместимость турникета с системами СКУД ведущих российских и зарубежных производителей;
- возможность поставки со встроенной СКУД;
- световая индикация;
- antipassback (запрет обратного движения сразу после подачи в СКУД сигнала о факте прохода);
- встроенный гидромеханический доводчик (плавная работа механизма вращения);
- нормально открытый режим работы (блокировка механизма поворота происходит только при нарушении правил прохода);
- полое пространство между боковыми стойками турникета позволяет использовать его для размещения дополнительных элементов и оборудования (контроллеров СКУД и т.д.), закрывается съемной панелью;
- встроенная звуковая сигнализация, срабатывающая при попытке несанкционированного прохода;
- корпус турникета изготовлен из стали, окрашенной порошковым методом, стандартный цвет – «серебряный антик».
Подготовка к работе и порядок установки турникета Ростов-Дон Т83М1:

- Распакуйте турникет и проверьте его комплектность;
- Подготовьте и закрепите специальные крепежные (анкерные) болты;
- Установите турникет и закрепите его;
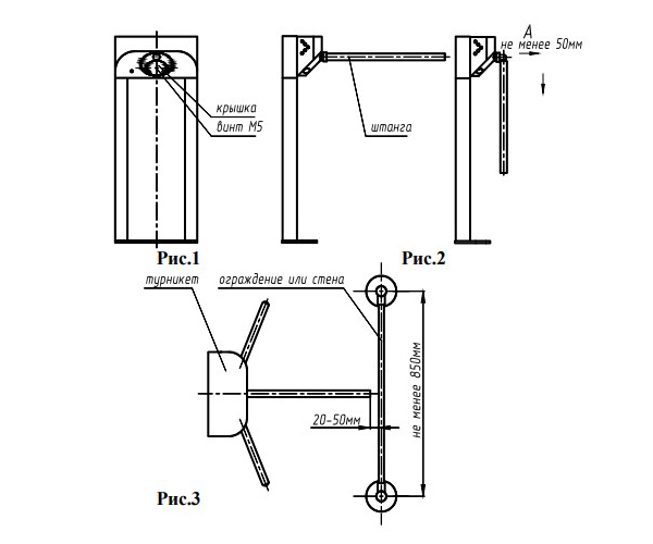
- Установите штанги. Для этого снимите крышку поворотного механизма, открутив винт М5 (рис.1). Закрепите штанги болтами М10, входящими в комплект штанг. Для перевода штанги «антипаника» в положение «проход открыт» оттяните штангу в направлении А (от турникета) на 50-80мм и поверните ее вниз (рис.2). Время открытия штанги «антипаника» составляет 1-3с.Закройте место крепления штанг крышкой;
- Для правильной работы турникета необходимо установить его с ограждением прохода так, как показано на рис.3 (вид сверху). Вместо ограждения прохода может быть стена, при этом конец штанги должен быть на расстоянии 20-50мм от стены (при использовании штанги «антипаника» - 50-60мм от стены);
- Заземлите корпус турникета;
- Подключите блок питания к сети, при этом механизм турникета должен быть в исходном состоянии;
- При необходимости изменить направление срабатывания кнопок SB1 ПДУ, поменяйте местами цепи по контактам 1 и 8 клеммника XT1, выключив питание;
- После завершения монтажа турникет готов к работе.
Купить Ростов-Дон Т83М1 (0459) в интернет-магазине СЕК-ГРУПП в Москве: Черницынский проезд, д.3, стр.1 (метро Щелковская). Доставка по России.

Напряжение питания для турникета
Потребление тока
Ширина проходной зоны
Количество ПДУ
Максимальная длина кабеля к ПДУ
Максимальная длина кабеля питания
Пропускная способность при однократном проходе
Пропускная способность при групповом проходе
Усилие поворота планки
Наработка на отказ (минимальное количество проходов)
Размеры турникета
Масса турникета
Срок службы
Рабочий диапазон температур
Стандартный комплект
Блок электронного управления
ПДУ и кабель
Паспорт изделия
Руководство по эксплуатации
До ТК (СДЭК, ПЭК, Деловые Линии) - 0 Р
Остальные транспортные компании - 1000 Р
Заказы от 60 000 Р (по ценам сайта) - 0 Р
В пределах МКАД заказы стоимость > 5 000 руб. и < 2 кг - 750 руб., > 2 кг составляет 1000 руб.
Негабарит МКАД - 1300 Р (более 5 метров - 2000 Р)
За МКАД - 1000 Р + 90Р/км
Негабарит за МКАД - 1300Р + 110Р/км (более 5 метров - 2000 Р + 110Р/км)
г. Москва, Черницынский пр-д, д. 3 стр. 1. метро Щелковская
г. Уфа, ул. Трамвайная, д. 2 оф. 1-02
Мы правильно определили ваш город?
Оплата осуществляется путем банковского перевода денежных средств с расчетного счета покупателя на наш расчетный счет.
Счет выставляется по запросу в печатном или электронном виде. Счет действителен в течении 3-х банковских дней за исключением оборудования производства компании PERCo.
Оплата наличными производится в офисах компании при получении товара со склада по адресам:
- г. Москва, Черницынский проезд, д.3, стр.3
- г. Уфа, Трамвайная улица, д.2, офис 1-02
Стоимость заказа передаётся водителю компании при получении товара.




















