Чтобы запросить цену ниже, укажите номер телефона и e-mail.
Все остальные данные Вы сможете сообщить менеджеру.
Количество считывателей
Количество зон прохода
Место установки
Встроенный картоприемник
Стандарт интерфейса связи
Автоматические планки
Встроенный контроллер
Ширина зоны прохода
Тип турникета

Скоростной проход PERCo-ST-01 является преграждающим устройством с распашными створками и предназначен для управления потоками людей на проходных административных учреждений, в банках, магазинах, вокзалах, аэропортах и т.п.
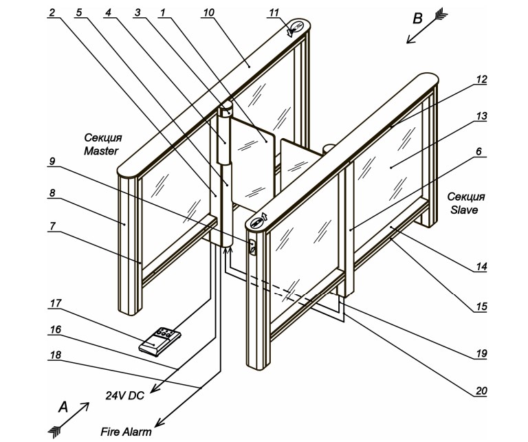
Турникет состоит из двух секций PERCo-ST-01/M (далее – секция Master) и PERCo-ST-01/S (далее – секция Slave). В стандартном комплекте поставки турникет позволяет организовать одну зону прохода. Ширина зоны прохода зависит от выбранной при заказе модели створок. При необходимости увеличения количества зон прохода предусмотрена возможность приобретения двусторонних секций PERCo-STD-01. Каждая двусторонняя секция позволяет организовать одну дополнительную зону прохода.
Конструкция турникета PERCo-ST-01
- Створка;
- Центральная стойка;
- Блок индикации центральной стойки;
- Кожух створки;
- Кожух центральной стойки;
- Задняя панель центральной стойки;
- Боковая стойка;
- Передняя панель центральной стойки;
- Торцевой блок индикации;
- Крышка стеклянная;
- Блок индикации на крышке;
- Верхний короб;
- Стекло заполнения;
- Крышка нижнего короба;
- Нижний короб;
- Кабель источника питания (не входит в стандартный комплект поставки);
- ПДУ с кабелем;
- Кабель устройства Fire Alarm (не входит в стандартный комплект поставки);
- Кабель соединения DC;
- Кабель соединения CAN.
Режимы управления турникетом
Доступны два режима управления турникетом PERCo-ST-01 – импульсный и потенциальный. В обоих режимах управление осуществляется подачей команд (то есть комбинации управляющих сигналов) на входы управления: Unlock A, Stop и Unlock B и специальный вход управления Fire Alarm. В зависимости от выбранного режима меняется алгоритм подачи команд управления.
Внимание!
Изменение положения переключателей, а также снятие и установка перемычек на платах турникета должны осуществляется только при выключенном питании турникета.
Выбор режима управления осуществляется переключателем Pulse на плате управления турникетом (см. рис. 8). При поставке переключатель находится в положении ON, что соответствует импульсному режиму управления турникетом. Для перевода турникета в потенциальный режим управления переведите переключатель в положение OFF. Изменение режима управления произойдет после включения турникета.
*Крышки и створки приобретаются отдельно.
Купить PERCo-ST-01 в интернет-магазине СЕК-ГРУПП в Москве: Черницынский проезд, д.3, стр.1 (метро Щелковская). Доставка по России.
1 шт.
1 шт.
1 шт.

PERCo-ST-01 со встроенным картоприемником1 053 755 ₽

Напряжение питания
Мощность
Ток потребления
Количество направлений прохода
Пропускная способность в режиме однократного прохода
Габаритные размеры (длина Х ширина Х высота)
Ширина зоны прохода
Рабочий температурный диапазон
Степень защиты оболочки IP
1 шт.
1 шт.
1 шт.
До ТК (СДЭК, ПЭК, Деловые Линии) - 0 Р
Остальные транспортные компании - 1000 Р
Заказы от 60 000 Р (по ценам сайта) - 0 Р
В пределах МКАД заказы стоимость > 5 000 руб. и < 2 кг - 750 руб., > 2 кг составляет 1000 руб.
Негабарит МКАД - 1300 Р (более 5 метров - 2000 Р)
За МКАД - 1000 Р + 90Р/км
Негабарит за МКАД - 1300Р + 110Р/км (более 5 метров - 2000 Р + 110Р/км)
г. Москва, Черницынский пр-д, д. 3 стр. 1. метро Щелковская
г. Уфа, ул. Трамвайная, д. 2 оф. 1-02
Мы правильно определили ваш город?
Оплата осуществляется путем банковского перевода денежных средств с расчетного счета покупателя на наш расчетный счет.
Счет выставляется по запросу в печатном или электронном виде. Счет действителен в течении 3-х банковских дней за исключением оборудования производства компании PERCo.
Оплата наличными производится в офисах компании при получении товара со склада по адресам:
- г. Москва, Черницынский проезд, д.3, стр.3
- г. Уфа, Трамвайная улица, д.2, офис 1-02
Стоимость заказа передаётся водителю компании при получении товара.



















